ΕλλάδαΕγκαταλελειμμένο μοναστήρι μετατράπηκε σε εξοχική κατοικία στην Μεσσηνιακή Μάνη

Εγκαταλελειμμένο μοναστήρι μετατράπηκε σε εξοχική κατοικία στην Μεσσηνιακή Μάνη

Στο ψηλότερο σημείο του χωριού Πύργος, βρίσκεται το ανακατασκευασμένο μοναστήρι που η κατασκευή του χρονολογείται από την δεκαετία του 1830. Οι βραβευμένες αρχιτεκτόνισσες Αγγελική Αθανασιάδου και Κατερίνα Βασιλάκου, προσπάθησαν με πολύ προσοχή και ιδιαίτερο σεβασμό να προσεγγίσουν την ανακατασκευή του κτίσματος.

eleanthi residence-p02
eleanthi residence-p03
eleanthi residence-p04
eleanthi residence-p05
eleanthi residence-p06
eleanthi residence-p07
eleanthi residence-p09

Τα αρχιτεκτονικά χαρακτηριστικά αποκαλύφθηκαν και συντηρήθηκαν με προσοχή στη λεπτομέρεια και σεβασμό στην ιστορικότητα του κτιρίου. Πέτρινα ανώφλια, εσωτερικές αυλές, καμάρες στο κατώι και παραδοσιακή λιθοδομή είναι τα δομικά στοιχεία της παραδοσιακής αρχιτεκτονικής.

Το design team του αρχιτεκτονικού γραφείου AVW Architecture προσέγγισε την ανακαίνιση χρησιμοποιώντας σύγχρονες λύσεις που ενώ δεν αλλοιώνουν καθόλου την αρχική κατασκευή, την μεταφέρουν τον 21ο αιώνα.

eleanthi residence-p11
eleanthi residence-p12
eleanthi residence-p13
eleanthi residence-p14
eleanthi residence-p15
eleanthi residence-p16
eleanthi residence-p18
eleanthi residence-p19
eleanthi residence-p21
eleanthi residence-p22
eleanthi residence-p24
eleanthi residence-p23
eleanthi residence-p25

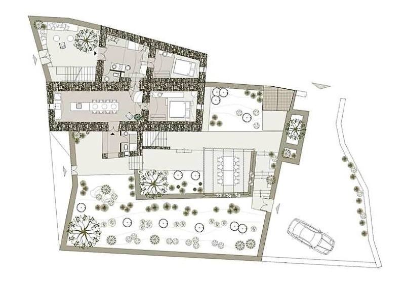
Η κατοικία αναπτύσσεται σε τρία επίπεδα. Στο πρώτο επίπεδο βρίσκονται δύο υπνοδωμάτια και η μεγάλη τραπεζαρία. Στο δεύτερο επίπεδο βρίσκονται δύο υπνοδωμάτια και το μεγάλο καθιστικό που σχεδιάστηκε για να προσφέρει χαλάρωση. Στο τρίτο επίπεδο ένα ακόμη υπνοδωμάτιο με συναρπαστική θέα.

Οι προσεγμένοι σχεδιαστικά εξωτερικοί χώροι δημιουργούν εστιακά σημεία χαλάρωσης με υπέροχη θέα στον Μεσσηνιακό κόλπο, τα παράκτια και ορεινά χωριά και την κορυφογραμμή του Ταϋγέτου.

eleanthi residence-p31-2
eleanthi residence-p32
eleanthi residence-p33
eleanthi residence-p34
eleanthi residence-p36
eleanthi residence-p37
eleanthi residence-p38
eleanthi residence-p39
eleanthi residence-p41
eleanthi residence-p42-1
eleanthi residence-p43

Η ιστορία του χωριού Πύργος, αρχίζει το 15ο αιώνα και ήταν παρατηρητήριο, τα χρόνια της Τουρκοκρατίας, με το όνομα του χωριού να προέρχεται από τον πρώτο πύργο που κατασκευάστηκε στην περιοχή από την οικογένεια Μανολίτση, που προερχόταν από τη Κωνσταντινούπολη.

Η πλούσια βλάστηση και τα χαρακτηριστικά δείγματα εξέλιξης της μανιάτικης κατοικίας χαρίζουν στην περιοχή ιστορική γοητεία.

eleanthi residence-p45eleanthi residence-p46
eleanthi residence-p47
eleanthi residence-p48eleanthi residence-p49

Έργο: Eleanthi residence
Αρχιτεκτονικό γραφείο: AVW Architecture
Αρχιτέκτονες: Αγγελική Αθανασιάδου, Κατερίνα Βασιλάκου
Εμβαδόν: 240 τ.μ.
Περιοχή: Πύργος, Λεύκτρον, Μεσσηνία

[designhome]

Τα πιο σημαντικά